$200,000 Sale
Listed 160 days ago
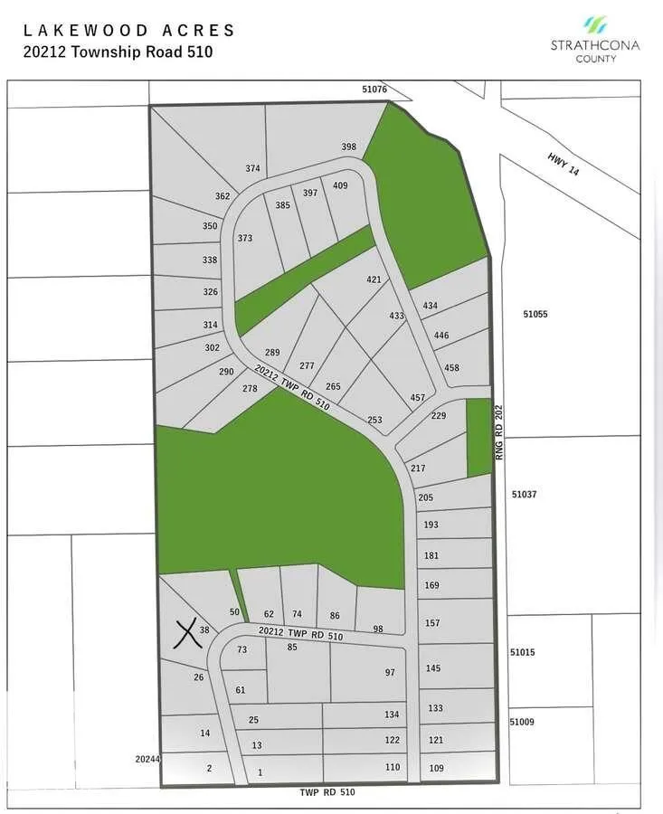
38 20212 TWP ROAD 510
· 0
· 0
· -
· -
Key Facts
Key facts for 38 20212 TWP ROAD 510
Property Type
Lots/Land
Parking
-
MLS®
E4432901
Size
-
Basement
-
Listed on
-
Lot size
-
Tax
-
Days on Website
-
Year Built
-
Maintenance Fee
-
Description
For more information, please click on "View Listing on Realtor Website". Discover 4.7 acres of raw land in Lakewood Acres, just 25 mins from SE Edmonton. Backing onto 50 acres of greenspace and adjacent to 40 more, enjoy privacy, nature, and abundant wildlife. The land features a hill, water body o...n the south edge, and a treed area with walking trails - ideal for a retreat or future build. Fully fenced with welded wire, it’s perfect for dogs and includes a round pen for horses. A gated driveway is in place, with a small shed included and a 40' seacan available. Services are at the property line. A rare opportunity to own scenic land with character and potential.
Similar Properties (No results)
Courtesy of: Darya M Pfund, Easy List Realty